物干しスペース (マンション/費用非公開)

リフォーム会社から
洗濯物は干したいけれど、お客様からの視線は気になる、そんなH様のご要望に、窓際に物干しスペースを確保しました。物干し金物も2段設置し、小スペースですが沢山の洗濯物を干すことが可能です。
※費用・工期等は実際の家屋状況や周辺環境によって異なります。参考情報としてご覧ください。
| リフォーム箇所 | ベランダ・バルコニー | リフォームの費用 | 非公開 |
|---|---|---|---|
| 建物のタイプ | マンション | 住まいの構造 | その他 |
| 施工面積 | 非公開 | 築年数 | 20年 |
| 施工前の間取り | 4LDK | 施工後の間取り | 4LDK |
| 色調 | ホワイト系 | デザイン | シンプルモダン |
| 所在地 | |||
このリフォーム事例全体の情報
家族が集うキッチン
| 工事全体の費用 | 408万円 | ||
|---|---|---|---|
| リフォーム箇所 | キッチン ベランダ・バルコニー | ||
| テーマ | 低予算 | ||
| 工期 | 4週間 | ||
| 家族構成 | ファミリー | ||
| リフォーム会社 | ロクサ株式会社 | ||
| 情報提供 | リショップナビ | ||
※費用・工期等は実際の家屋状況や周辺環境によって異なります。
施主・ご利用者のリクエスト
ご家族の所有するマンションの2階にお住まいのH様、親戚の方が事務所に使用されていた隣の住宅の一部をつなげ、子供部屋の増築をご希望でした。合わせて、壁付けI型キッチンをご家族全員で料理ができるアイランドキッチンにリフォームしたいとのご要望でした。
リフォーム会社から
アイランドキッチンを囲んで家族皆で料理がしたいというご要望がございましたが、ご予算の都合上メーカーの既製品を設置する事を断念する事となりました。そこで、I型キッチンと腰壁を組合せ写真のようなキッチンを造作致しました。しかも、このキッチンを中心に子供部屋を配置した事で、家族の気配を感じやすく、皆が集いやすいキッチンとなりました。
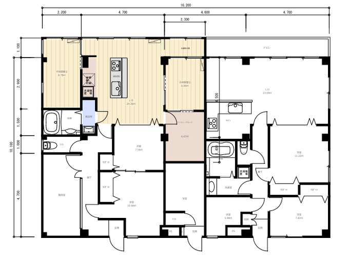
間取り図
施工前:4LDK

施工後:4LDK
施工後間取り画像
同時にリフォームした箇所
キッチンアイランド型キッチン
ロクサ株式会社 のリフォーム事例
リビングダイニング明るく広いリビングダイニングへ
床材は全てオーク材を使用し、明るくナチュラルな雰囲気になりました。むき出しの天井SOHO利用との事で、天井はのコンクリートそのままにし、天井を高くとりました。
また、仕切りのアコーディオンカーテ...耐震工事を考慮したプランニング1FのDKと2Fは、既存間仕切り壁をほとんどなくしできるだけ広く使われたいとご希望でした。
できる限り窓回りのサッシ...キッチンエリア以前は吊戸棚があって閉塞感のあったキッチン。リノベーションにあたって吊戸棚をなくし、レンジフード前の壁も幅ギリギ...
ベランダ・バルコニー マンション リフォームの最新事例
リフォーム情報・費用
費用・相場
お役立ちガイド・コラム
クチコミ・掲示板











